 |
コ
ン
ペ
開
催
条
件 |
コンペ対象物件所在地 |
兵庫県神戸市中央区下山手通 |
| 業種 |
美容室 |
| 面積 |
約18.5坪(約61u) |
| コンペお申込者様 |
個人 |
| 現況 |
独立 |
| コンペの重視する点 |
| ▼ 最も重視する点 |
▼ 2番目に重視する点 |
▼ 3番目に重視する点 |
| 金額優先 |
デザイン優先 |
デザインと金額のバランス |
|
| 内装工事予算額 |
700万円 |
| 依頼業務の種別 |
新装/デザイン・内装工事 |
| 顧客ターゲット |
25歳〜35歳をメインとする女性 OL、主婦 |
| その他 |
ギャラリーやカフェ風 |
| コンペ種別 |
オープンコンペ |


  
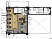
| ▼ コンペ開催者評価 ※ 各資料をクリックすると拡大表示されます |
|
|
他の参加登録事業会社の評価(順不同) |
| A社への評価 |
B社への評価 |
C社への評価 |
D社への評価 |
 |
 |
 |
 |
 |
| 見積金額 |
| @6,500,000円 |
| A6,500,000円 |
| ※ボイラー価格含まず |
|
|
|
|
| 見積金額 |
| @7,000,000円 |
| A6,400,000円 |
|
|


|一覧に戻る|
|
|
 |
店舗デザイン・内装工事の経験豊かな内装工事会社との複数の交渉を一括して行うことにより、繁忙する交渉と束縛される時間から解放致します。
また、競争原理が導入されることによって、デザイン性の高さと価格抑制作用が発揮され、よりイメージ通りの出店が費用を抑えて可能となります。 |
 |
|
Copyright (C) 2007 Design Derby All Rights Reserved. |
|
 |