店舗デザイン・内装工事の無料相見積もりコンペ デザインダービー

競争原理が導入されることで、デザイン性の高さと価格抑制作用が発揮され、よりイメージ通りの出店が費用を抑えて可能です!

 
デザインダービー TOP初めての方へコンペ実施例用語説明会社案内お問い合わせ
 

 店舗デザイン・内装工事 無料コンペ デザインダービー > デザインダービーコンペ実施例 > デザインダービーコンペ実施例 詳細ページ
 デザインダービーコンペ実施例 詳細ページ

さまざまなお客様の多様なニーズにお応えし、これまでに数多くの店舗デザイン・内装工事コンペを行ってきました
ここでは実績の一部を抜粋して掲載しています。


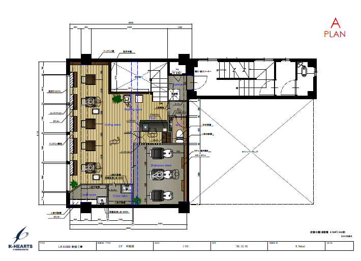
  hair salon LR KOBE <兵庫>
 
 コンペ番号  110001
 店舗名  hair salon LR KOBE
 物件所在地  兵庫県神戸市中央区下山手通
 面積  約18.5坪(約61u)
 業種  美容室
 依頼業務の種別  店舗デザイン・内装工事
 内装工事予算額  700万円
 内装工事契約額  630万円(税込)
 ・美容機器器具除く
 ・ボイラー除く
 ・照明、空調含む
 ・トイレ、排水等含む
 URL  http://www.lr-kobe.com/
 店舗デザイン
 内装工事会社
 株式会社K-HEARTS

お客様からのコメント

自分の好みをより理解していただいてのデザインだと思います。
デザイン会社の工事責任者の方もプレゼン時に来ていただいたのも安心につながりました。なので工事中も意思疎通がうまくできて大変満足な仕上がりになりました。このシステムを利用して良かったです。







  工事前




  工事風景




  施工終了





説明会開催 2009年10月1日 参加登録事業者数7社
プレゼンテーション開催 2009年10月13日 参加登録事業者数5社
採用登録事業会社決定 2009年10月16日 株式会社ケイ・ハーツ
工事請負契約書締結 2009年10月23日 契約額6,300,000円(税込)
手付金支払 2009年10月28日 2,000,000円
内装工事開始 2009年10月31日
内装工事終了 引渡 2009年11月17日
工事代金残額支払 2009年11月17日 4,300,000円
オープン 2009年11月24日



http://www.lr-kobe.com/
http://www.k-hearts.co.jp/shop/work49.html
http://www.yamaguchi-r.co.jp/topics/log/eid116.html
http://beauty.hotpepper.jp/B_20100/slnH000136927_fvt0.html










店舗デザイン・内装工事の経験豊かな内装工事会社との複数の交渉を一括して行うことにより、繁忙する交渉と束縛される時間から解放致します。
また、競争原理が導入されることによって、デザイン性の高さと価格抑制作用が発揮され、よりイメージ通りの出店が費用を抑えて可能となります。
   
Copyright (C) 2007 Design Derby All Rights Reserved.