競争原理が導入されることで、デザイン性の高さと価格抑制作用が発揮され、よりイメージ通りの出店が費用を抑えて可能です!
店舗デザイン・内装工事 無料コンペ デザインダービー
> デザインダービーコンペ開催結果
デザインダービー コンペ開催結果
コンペ番号:120001 <兵庫>
コ
ン
ペ
開
催
条
件
コンペ対象物件所在地
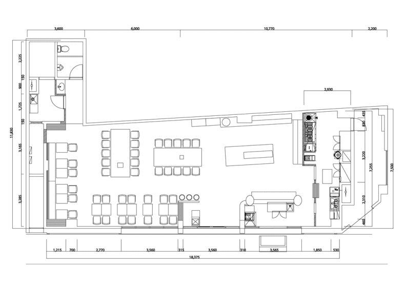
兵庫県姫路市錦町
業種
和風バイキング
面積
約52坪(約171u)
コンペお申込者様
個人
現況
既1店舗経営
コンペの重視する点
▼ 最も重視する点
▼ 2番目に重視する点
▼ 3番目に重視する点
金額優先
対応スピード
デザインと金額のバランス
内装工事予算額
600万円
依頼業務の種別
新装/デザイン・内装工事
顧客ターゲット
女性全般、学生、観光客
その他
床及び壁紙の張替によるカラーコーディネイトを中心
コンペ種別
オープンコンペ
▼ 説明会の模様
▼ プレゼンテーションの模様(順不同)
▼ コンペ開催者評価
※ 各資料をクリックすると拡大表示されます
[ 採用会社 ]
(株)コスモデザイン企画への評価
見積金額
6,700,000円
A社への評価
見積金額
@6,300,000円
A8,700,000円
|
一覧に戻る
|
|
店舗物件探し.comトップページ
|
初めての方へ
|
会社案内
|
お問い合わせ
|
プライバシーポリシー
|
リンク
|
|
コンペのお申込
|
コンペ実施例
|
店舗デザイン・内装工事会社一覧
|
コンペの流れ
|
よくあるご質問と回答
|
用語説明
|
|
店舗デザイン・内装工事会社様向け よくあるご質問と回答
|
店舗デザイン・内装工事会社 登録申込
|
店舗デザイン・内装工事の経験豊かな内装工事会社との複数の交渉を一括して行うことにより、繁忙する交渉と束縛される時間から解放致します。
また、競争原理が導入されることによって、デザイン性の高さと価格抑制作用が発揮され、よりイメージ通りの出店が費用を抑えて可能となります。
Copyright (C) 2007 Design Derby All Rights Reserved.