競争原理が導入されることで、デザイン性の高さと価格抑制作用が発揮され、よりイメージ通りの出店が費用を抑えて可能です!
店舗デザイン・内装工事 無料コンペ デザインダービー
>
デザインダービー実施例
> デザインダービー実施例 詳細ページ
デザインダービー実施例 詳細ページ
さまざまなお客様の多様なニーズにお応えし、これまでに数多くの店舗デザイン・内装工事コンペを行ってきました
ここでは実績の一部を抜粋して掲載しています。
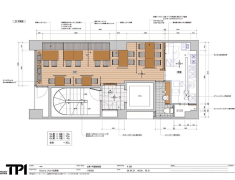
炭焼きイタリアン Cicoria <神戸>
コンペ番号
100104
店舗名
Cicoria
物件所在地
兵庫県神戸市 三宮
面積
14坪 (46.68u)
業種
飲食店
URL
--
店舗デザイン
内装工事会社
株式会社 ティーピーアイ
お客様からのコメント
希望通りの席数も確保でき、やわらかい素材で閉鎖的でない個室感も演出できたと満足しています。生の野菜をディスプレイすることで店のコンセプトも打ち出せたと思ってます。ありがとうございました。
店舗デザイン・内装工事会社 コメント
2F店舗ですが大きなガラス面が表側にあり、これを最大限に生かせるデザインを考えました。またエレベーターが奥まった所にあり入りにくい為、非常階段を利用し、サイン・照明を使って新たな店への導線を確保しました。
プレゼン提案資料
完成写真
|
店舗物件探し.comトップページ
|
初めての方へ
|
会社案内
|
お問い合わせ
|
プライバシーポリシー
|
リンク
|
|
コンペのお申込
|
コンペ実施例
|
店舗デザイン・内装工事会社一覧
|
コンペの流れ
|
よくあるご質問と回答
|
用語説明
|
|
店舗デザイン・内装工事会社様向け よくあるご質問と回答
|
店舗デザイン・内装工事会社 登録申込
|
店舗デザイン・内装工事の経験豊かな内装工事会社との複数の交渉を一括して行うことにより、繁忙する交渉と束縛される時間から解放致します。
また、競争原理が導入されることによって、デザイン性の高さと価格抑制作用が発揮され、よりイメージ通りの出店が費用を抑えて可能となります。
Copyright (C) 2007 Design Derby All Rights Reserved.